του Παπαδάκη Αναστάση
Από τις πιο αγαπημένες βόλτες στο νησί, είναι η διαδρομή από το λιμάνι, μέχρι την Πέρδικα. Από τη μια κτίρια και από την άλλη η θάλασσα. Κτίρια παλιά και καινούρια, μεγάλα και μικρά, λευκά και χρωματιστά, αντικατοπτρίζουν κοινωνικές συνήθειες και αξίες, επιτελούν κοινωνικές λειτουργίες και τελικά διαμορφώνουν το ίδιο το τοπίο που τα φιλοξενεί. Το μέτωπο των κτιρίων σταματά απότομα μετά τον Μαραθώνα όπως απότομα ξεκινά και πάλι με το Moondy Bay, του οποίου η ταμπέλα μαζί με τους ευκαλύπτους σηματοδοτούν την αρχή της Αιγινήτισσας.
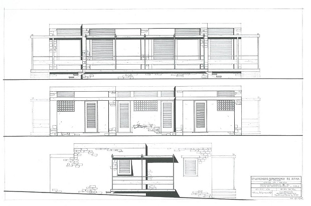
To Moondy Bay κατασκευάστηκε το 1963 με ιδιωτικά κεφάλαια σε σχέδια του αρχιτέκτονα Χαράλαμπου Σφαέλλου. Το ξενοδοχείο ακολουθεί τις αρχές του μοντέρνου κινήματος, όμως η κλίμακα (διώροφες πτέρυγες), η χρήση φυσικών υλικών (πέτρα) και ο εκτεταμένος σχεδιασμός υμιυπαίθριων χώρων (πέργκολες, μπαλκόνια) δημιουργεί ένα μοντέλο κοντά στην τοπική αρχιτεκτονική (μεσογειακός μοντερνισμός) που δεν ακολουθεί την αυστηρότητα του Bauhaus.
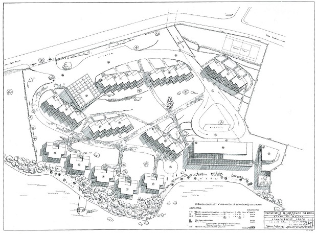
Η ιδέα της ανάπτυξης ενός ξενοδοχείου σε πτέρυγες, πρωτοεφαρμόστηκε από τον Χ. Σφαέλλο το 1958 στο Miramare της Ρόδου. Η διαφορά είναι ότι ενώ οι πτέρυγες του Miramare ακολουθούν μια γεωμετρία, στο Moondy Bay είναι τοποθετημένες ελεύθερα στον χώρο και ενώνονται με καμπύλους δρόμους κοντά στη λογική των κηπουπόλεων του μεσοπολέμου.
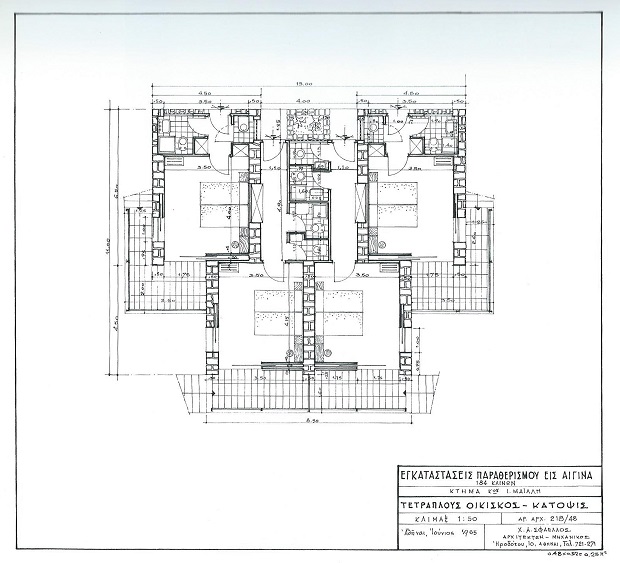
Στα δωμάτια ο Χ. Σφαέλλος ακολουθεί την πεπατημένη, τοποθετώντας στο πίσω μέρος (προς τον δρόμο) τους χώρους υγιεινής ενώ τα υπνοδωμάτια και οι υμιυπαίθριοι χώροι απολαμβάνουν την καλύτερη θέα. Η θέση του μπορεί να βρίσκεται σε απόσταση από τα κύρια αξιοθέατα του νησιού (Κολώνα, ναός της Αφαίας) αλλά η άμεση σχέση του συγκροτήματος με τη θάλασσα συνάδει με το πνεύμα του τουρισμού μετά τον πόλεμο που δίνει μεγαλύτερη έμφαση στο ‘‘ελληνικό τοπίο’’.
Για να γίνει όμως το κτίριο πιο κατανοητό, πρέπει να παρουσιαστεί το ιστορικό πλαίσιο.
Μετά τον πόλεμο, σχεδιάζεται αναπτυξιακό πρόγραμμα το οποίο θα βοηθούσε την ελληνική οικονομία να ορθοποδήσει στηριζόμενη στη βιομηχανία και τον τουρισμό. Σχετικά με τον τουρισμό, το κράτος αντιλήφτηκε την ανασφάλεια του ιδιωτικού τομέα για επενδύσεις και έτσι χρηματοδότησε μια σειρά από έργα υποδομής όπως: δρόμους, λιμάνια, μαρίνες, αρχαιολογικά μουσεία καθώς και την αναμόρφωση ακτών και αρχαιολογικών χώρων. Το δημόσιο ξεκινά το πρόγραμμα των Ξενία την ίδια εποχή. Τα Ξενία είναι μια αλυσίδα ξενοδοχείων σχεδιασμένα από τους καλύτερους Έλληνες αρχιτέκτονες της εποχής, με απώτερο σκοπό να ακολουθήσει στη συνέχεια και ο ιδιωτικός τομέας. Ως πρότυπα για τα Ξενία λειτούργησαν τα Paradores, μια αλυσίδα ξενοδοχείων στην Ισπανία (ο μεγαλύτερος ανταγωνιστής της Ελλάδας στον τουρισμό) τα οποία στην πλειονότητα τους ήταν παραχρήσεις ιστορικών κτιρίων (παλάτια, μοναστήρια, κάστρα). Τον σχεδιασμό και την κατασκευή των ξενοδοχείων ανέλαβε ο ΕΟΤ ο οποίος επανιδρύεται το 1950 (ιδρύεται το 1929) ενώ είναι η εξέλιξη του Γραφείου Ξένων και Εκθέσεων που ξεκινά την λειτουργία του το 1914. Ο Χ. Σφαέλλος προΐσταται της Τεχνικής Υπηρεσίας του ΕΟΤ από το 1951 έως το 1958 ενώ στη συνέχεια και έως το 1967 αναλαμβάνει ο Άρης Κωνσταντινίδης. Η προσπάθεια του κράτους τελικά απέδωσε καρπούς (τουλάχιστον στον τουρισμό) αφού στις επόμενες δεκαετίες ο αριθμός των επισκεπτών πολλαπλασιάζεται συν ότι μια σειρά από ιδιωτικές αλυσίδες ξενοδοχείων, πάντα στα πρότυπα των Ξενία άρχισαν να δημιουργούνται όπως τα: Αμαλία, Ηλέκτρα, Αστήρ κτλ.
Ο Χ. Σφαέλλος σχεδίασε τα πρώτα Ξενία στην Καστοριά, στο Αργοστόλι, στη Θάσο, στην Κέρκυρα και στη Τσαγκαράδα ενώ σχεδίασε και μια σειρά από ιδιωτικά ξενοδοχεία και ξενώνες όπως: τα Asprakis Hotel και Iviskos Hotel στη Ρόδο, το Miramare στην Κέρκυρα, το Meloi Resort στην Πάτμο και άλλα πολλά.
Ενώ στο Ναύπλιο, στις Σπέτσες και τον Πόρο κατασκευάστηκαν Ξενία, στην Αίγινα δεν έγινε κάτι τέτοιο. Το Moondy Bay ήρθε να καλύψει την ανάγκη των επισκεπτών για ανώτερης ποιότητας διαμονή με τις μοντέρνες ανέσεις του τότε. Ο μύθος του Moondy Bay θα μπορούσε να γίνει καλύτερα αντιληπτός μέσα από ταινίες εποχής όπως το «Νύχτες στο Miramare» του 1960, το «Ο εμίρης και ο κακομοίρης» του 1964 ή το «Κάτι κουρασμένα παλικάρια» του 1967.
Το Moondy Bay στην Αιγινήτισσα, όπως και το Apollo στην Αγία Μαρίνα είναι τα επιτυχημένα δείγματα στο νησί, της αρχιτεκτονικής των τουριστικών εγκαταστάσεων του 60, δηλαδή της αρχιτεκτονικής στην οποία βασίστηκε επί μακρών το μοντέλο του ελληνικού τουρισμού. Οι φωνές που μιλούν για ‘‘τουριστική αξιοποίηση’’ πληθαίνουν. Η μελέτη τέτοιων παραδειγμάτων (παρά το γεγονός ότι πολλά έχουν αλλάξει από τότε) μπορεί να βοηθήσει σημαντικά στο πώς και πόσο να χρησιμοποιήσουμε το ‘‘ήλιος και θάλασσα’’ στην εποχή ‘‘μετά την κρίση’’ που έρχεται.
«ΧΑΡΑΛΑΜΠΟΣ ΣΦΑΕΛΛΟΣ: ΑΡΧΙΤΕΚΤΟΝΙΚΗ-ΑΝΑΠΤΥΞΗ», επιμέλεια Λούση Μπρατζιώτη, εκδώσεις Μουσείο Μπενάκη, Αθήνα 2002.
«Τουριστικές εγκαταστάσεις στην Ελλάδα 1950-1974» γράφων Βασίλης Κολώνας, απόσπασμα από τον κατάλογο της Ελληνικής συμμετοχής στην 14η Biennale της Βενετίας ‘‘Τοπία Τουρισμού: Ανακατασκευάζοντας την Ελλάδα’’, επιμέλεια Αίσωπος Γιάννης, Νικολοβγένης Ανδρέας, Οικονόμου Ευγενία, εκδώσεις Δομές, Αθήνα 2015.




 
									






